














Kraków Łagiewniki-Borek Fałęcki
Lokal na wynajem nr oferty: AP7-LW-14269
powierzchnia
217.72 m2
cena
15 675,00 zł
3 piętro
Kontakt do agenta
pobierz PDF
drukuj

Szczegóły
Opłaty w czynszu
lokalizacja
Pomieszczenia
Opis
Zdjęcia















Lokal na wynajem
Opis
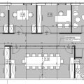
Do wynajęcia częściowo umeblowany lokal biurowy o pow. brutto 217,72m2 i pow. netto 204,50m2 położony na III piętrze w reprezentacyjnym biurowcu w okolicy ul. Jugowickiej.
Lokal składa się z: komunikacji z recepcją, powierzchni open space, 5 gabinetów, 2 sal konferencyjnych z możliwością połączenia ich ze sobą (składana ściana akustyczna), aneksu kuchennego z jadalnią, serwerowni. Na piętrze dostępne toalety.
Większość umeblowania widocznego na zdjęciach jest na wyposażeniu lokalu (biurka z open space należą do najemcy).
Na podłodze wysokiej klasy wykładzina biurowa, ściany pomalowane na biało zostaną odświeżone. Wszystkie pomieszczenia posiadają przeszkolone wejścia.
Lokal dostępny od V 2026r. przy czym być może możliwe będzie jego wcześniejsze zwolnienie.
Do ceny najmu należy doliczyć podatek VAT, 12zł netto/m2 opłaty eksploatacyjnej, media wg zużycia. 5% współczynnika pow. wspólnej.
Dwa miejsca parkingowe w garażu podziemnym w cenie.
W okolicy siedziby firm, biurowce, punkty usługowe, centrum handlowe, zabudowa jednorodzinna, przystanki komunikacji miejskiej.
Zapraszam osoby zainteresowane.
Więcej ofert znajdziecie Państwo na naszej stronie internetowej www.ap7.pl
Nasze usługi świadczymy zgodnie z Ustawą z dnia 21 sierpnia 1997 r. o gospodarce nieruchomościami (t.j. Dz. U. z 2024 r. poz. 1145 z późn. zm .), w oparciu o umowę pośrednictwa, która gwarantuje Państwu bezpieczeństwo transakcji oraz pełną opiekę naszego doradcy przez cały okres trwania współpracy. Zgodnie z art. 179b. powołanej wyżej ustawy za wykonaną usługę pobieramy wynagrodzenie zgodnie z warunkami uzgodnionymi w zawartej umowie, którą podpisujemy podczas pierwszego spotkania z Klientem.
Lokal składa się z: komunikacji z recepcją, powierzchni open space, 5 gabinetów, 2 sal konferencyjnych z możliwością połączenia ich ze sobą (składana ściana akustyczna), aneksu kuchennego z jadalnią, serwerowni. Na piętrze dostępne toalety.
Większość umeblowania widocznego na zdjęciach jest na wyposażeniu lokalu (biurka z open space należą do najemcy).
Na podłodze wysokiej klasy wykładzina biurowa, ściany pomalowane na biało zostaną odświeżone. Wszystkie pomieszczenia posiadają przeszkolone wejścia.
Lokal dostępny od V 2026r. przy czym być może możliwe będzie jego wcześniejsze zwolnienie.
Do ceny najmu należy doliczyć podatek VAT, 12zł netto/m2 opłaty eksploatacyjnej, media wg zużycia. 5% współczynnika pow. wspólnej.
Dwa miejsca parkingowe w garażu podziemnym w cenie.
W okolicy siedziby firm, biurowce, punkty usługowe, centrum handlowe, zabudowa jednorodzinna, przystanki komunikacji miejskiej.
Zapraszam osoby zainteresowane.
Więcej ofert znajdziecie Państwo na naszej stronie internetowej www.ap7.pl
Nasze usługi świadczymy zgodnie z Ustawą z dnia 21 sierpnia 1997 r. o gospodarce nieruchomościami (t.j. Dz. U. z 2024 r. poz. 1145 z późn. zm .), w oparciu o umowę pośrednictwa, która gwarantuje Państwu bezpieczeństwo transakcji oraz pełną opiekę naszego doradcy przez cały okres trwania współpracy. Zgodnie z art. 179b. powołanej wyżej ustawy za wykonaną usługę pobieramy wynagrodzenie zgodnie z warunkami uzgodnionymi w zawartej umowie, którą podpisujemy podczas pierwszego spotkania z Klientem.
lokalizacja
Szczegóły
Stan prawny
Własność
Powierzchnia
217.72
Powierzchnia użytkowa [m2]
204,50 m²
Liczba pięter w budynku
3
Rok budowy
2021
Rodzaj budynku
biurowiec
Instalacje
nowe
Czynsz najmu netto /m2
72 PLN
Czynsz najmu brutto /m2
89 PLN
Standard
Opłaty w czynszu
- Winda
- ochrona
- monitoring
- Części wspólne
Opłaty dodatkowe
- prąd
Media
Ogrzewanie
NAWIEWOWE
Dodatkowe informacje
Stan lokalu
bardzo dobry
Typ kaucji
jednomiesięczna
Okna
aluminiowe
Rodzaj lokalu
jednopoziomowy
Przeznaczenie lokalu
biurowy
Dojazd
asfalt
Winda
tak
Liczba wind
2
Usytuowanie
jednostronne
Własny parking
tak
Położenie lokalu
ruchliwa ulica
Wejście
od ulicy
Pomieszczenia
Liczba pomieszczeń biurowych
6
Liczba pomieszczeń socjalnych
1
Powierzchnia pomieszczeń biurowych od [m2]
10,7000 m2
Powierzchnia pomieszczeń socjalnych [m2]
9,2000 m2
Kontakt do agenta
pobierz PDF
drukuj
