















Wielka Wieś Modlniczka
Apartment for sale 
















Apartment for sale
Description
Na sprzedaż lokal mieszkalny ( lewa połowa domu) w stanie deweloperskim o powierzchni użytkowej 123,28 m² . | ukr ↓ , eng ↓ |
Nieruchomość położona w spokojnej, zielonej części Modlniczki – zaledwie kilka minut od Krakowa.
Najważniejsze atuty:
• kupujący nie płaci podatku PCC ,
• powierzchnia działki: 3,8a (wyłączne prawo korzystania) ,
• taras: 22,7m² ,
• przygotowane instalacje pod rekuperację , pompę ciepła oraz piec gazowy dwufunkcyjny ,
• światłowód i zbiornik na deszczówkę w standardzie ,
• 2 zadaszone miejsca postojowe plus miejsca przed budynkiem .
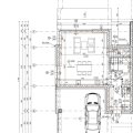
Przemyślany układ:
Parter (wys. 2,9m) :
– wiatrołap ,
– przedpokój z klatką schodową ,
– przestronny salon (z dużymi przeszkleniami) połączony z otwartą , jasną kuchnią i jadalnią . Z salonu wyjście na taras ,
– łazienka z WC ,
– kotłownia z pralnią.
Piętro (wys. 3,05m) :
– przedpokój ,
– 3 sypialnie z dwoma balkonami (21,4 m² i 14,04 m²) ,
– 1 sypialnia z francuskim balkonem ,
– łazienka z WC ,
– właz z wyjściem na strych.
Standard wykończenia:
Okna PCV 3-szybowe i drzwi tarasowe HS ( przesuwane) Smart Slide, na podłodze wylewka , ściany pokryte tynkiem gipsowym dachówka na rąbek w kolorze szarym, elewacja w odcieniach bieli i szarości, ogrzewanie podłogowe w całym budynku, ocieplenie styropianem 20 cm, kostka brukowa premium, ogrodzenie z trzech stron działki.
Przygotowane instalacje pod rekuperację i pompę ciepła. Światłowód i zbiornik na deszczówkę w standardzie.
Lokalizacja:
Modlniczka – idealne miejsce dla tych, którzy cenią spokój natury, a jednocześnie chcą być blisko miasta. W pobliżu szkoła, przedszkola, sklepy i centra handlowe (IKEA, Factory, Galeria Bronowice).
Do centrum Krakowa 15–20 minut, szybki dojazd przez A4 lub Jasnogórską.
Dlaczego warto:
• dom wybudowany z materiałów wysokiej jakości ,
• nowoczesne, ekologiczne rozwiązania ,
• duży taras i prywatny ogród ,
• możliwość wykończenia pod klucz ,
• lokalizacja łącząca naturę i wygodę życia miejskiego.
Dom dla tych, którzy szukają przestrzeni, światła i jakości.
Zapraszam osoby zaineresowane do kontaktu oraz na prezentację mieszkania.
We speak: ukr / ru / eng / pl
Więcej ofert znajduje się na stronie www.ap7.pl
Nasze usługi świadczymy zgodnie z Ustawą z dnia 21 sierpnia 1997 r. o gospodarce nieruchomościami (t.j. Dz. U. z 2024 r. poz. 1145 z późn. zm.), w oparciu o umowę pośrednictwa, która gwarantuje Państwu bezpieczeństwo transakcji oraz pełną opiekę naszego doradcy przez cały okres trwania współpracy. Zgodnie z art. 179b. powołanej wyżej ustawy za wykonaną usługę pobieramy wynagrodzenie zgodnie z warunkami uzgodnionymi w zawartej umowie, którą podpisujemy podczas pierwszego spotkania z Klientem.
На продаж житлове приміщення (ліва половина будинку) у стані девелоперському, з корисною площею 123,28 м².
Нерухомість розташована у спокійній, зеленій частині Модльнічки – всього за кілька хвилин від Кракова.
Основні переваги:
• покупець не сплачує податок PCC,
- площа ділянки: 3,8 ар (виключне право користування),
- тераса: 22,7 м²,
- підготовлені інсталяції під рекуперацію, тепловий насос та газовий двофункційний котел,
- світловід і резервуар для дощової води — у стандарті,
- 2 накриті паркомісця + додаткові місця перед будинком.
Продумане планування:
Перший поверх (висота 2,9 м):
- передпокій (вітальня) ,
- коридор зі сходами ,
- простора вітальня з великими вікнами, об’єднана з відкритою світлою кухнею та їдальнею, вихід із вітальні на терасу та в сад ,
- ванна кімната з туалетом ,
- котельня з пральнею.
Другий поверх (висота 3,05 м):
- коридор ,
- 3 спальні з двома балконами (21,4 m² i 14,04 m²) ,
- 1 спальня з французьким балконом ,
- ванна кімната з туалетом ,
- вихід на горище .
Стандарт оздоблення:
- Вікна ПВХ з потрійним склопакетом, терасові розсувні двері Smart Slide (HS) ,
- Підлога — бетонна стяжка, стіни покриті гіпсовою штукатуркою ,
- Металева дахівка на фальц, колір чорний ,
- Фасад у відтінках білого та сірого ,
- Підігрів підлоги у всьому будинку ,
- Утеплення пінопластом 20 см ,
- Бруківка преміум-класу, огорожа з трьох сторін ділянки ,
- Підготовлені інсталяції під рекуперацію і тепловий насос ,
- Світловід та резервуар для дощової води — у стандарті.
Локація:
Модлнічка — ідеальне місце для тих, хто цінує спокій природи, але хоче жити поруч із містом.
Поруч — школа, дитсадки, магазини та торгові центри (IKEA, Factory, Galeria Bronowice).
До центру Кракова — 15–20 хвилин, швидкий доїзд через A4 або вул. Ясногурська.
Переваги:
- Висока якість використаних матеріалів,
- Сучасні, екологічні рішення,
- Велика тераса і приватний сад,
- Можливість оздоблення “під ключ”,
- Вдале поєднання природи та міського комфорту.
Будинок для тих, хто шукає простір, світло та якість.
Запрошуємо до контакту та перегляду!
We speak: Ukr / Ru / Eng / Pl
Більше пропозицій на: www.ap7.pl
Наші послуги надаються відповідно до Закону від 21 серпня 1997 року про управління нерухомістю (Dz.U. 2024 poz. 1145 з наступними змінами), на основі договору про посередництво, що гарантує безпеку угоди та повну підтримку нашого консультанта протягом усього періоду співпраці.
Згідно зі ст. 179b зазначеного закону, за надані послуги стягується винагорода відповідно до умов підписаного договору, який укладається під час першої зустрічі з клієнтом.
For sale: a residential unit (left half of a semi-detached house) in developer standard, with a usable area of 123.28 m².
The property is located in a peaceful, green area of Modlniczka, just a few minutes from Kraków.
Key features:
-
Plot area: 3.8 ares,
-
Terrace: 22.7 m²,
-
Installations prepared for heat pump, recuperation system, and dual-function gas boiler,
-
Fiber optic internet and rainwater tank included in the standard,
-
2 covered parking spaces + additional ones in front of the building.
Thoughtful layout:
Ground floor (height 2.9 m):
-
Entrance hall (vestibule) ,
-
Hallway with staircase ,
-
Spacious living room with large glazing, connected to a bright open kitchen and dining area , direct access to the terrace and private garden ,
-
Bathroom with WC ,
-
Utility room with laundry area.
First floor (height 3.05 m):
-
Hallway ,
-
3 bedrooms with two balconies (21,4 m² and 14,04 m²) ,
-
1 bedroom with French balcony ,
-
Bathroom with WC ,
-
Ceiling hatch with access to the attic .
Finishing standard:
-
PVC windows (triple-glazed) + Smart Slide (HS) sliding terrace doors ,
-
Floors prepared with screed, walls covered with gypsum plaster ,
-
Black standing seam metal roof ,
-
Modern façade in white and grey tones ,
-
Underfloor heating throughout the house ,
-
20 cm styrofoam insulation ,
-
Premium paving stones and fence on three sides of the plot ,
-
Installations ready for heat pump and recuperation system ,
-
Fiber optic internet and rainwater tank included .
Location:
Modlniczka – a perfect place for those who appreciate nature and peace, yet want to stay close to the city.
Nearby: school, kindergartens, local shops, and shopping centers (IKEA, Factory Kraków, Galeria Bronowice).
To Kraków city center: 15–20 minutes, with easy access via A4 or Jasnogórska Street.
Why it’s worth it:
-
High-quality building materials ,
-
Modern and eco-friendly solutions ,
-
Large terrace and private garden ,
-
Option for turnkey finishing ,
-
Perfect balance between nature and urban comfort .
A home for those who value space, light, and quality.
Contact us to schedule a viewing!
We speak: Ukr / Ru / Eng / Pl
More offers available at: www.ap7.pl
Our services are provided in accordance with the Act on Real Estate Management of 21 August 1997 (Journal of Laws 2024, item 1145, as amended), based on a brokerage agreement, which ensures transaction safety and full support from our advisor throughout the cooperation period.
According to Article 179b of the Act, a commission fee is charged under the terms agreed in the signed contract, concluded during the first meeting with the client.
Details
Standard
Media
Additional information
Rooms
